
Автоматический угольный котел 300 кВт в Майкопе
Цена 990 000 рублей с НДС
Эффективная работа даже на несортовом угле
Размеры сжигаемого кускового топлива до 10 см
Дымосос для работы не требуется
Удобная и функциональная автоматика
Автоматическое золоудаление без остановки котла
Отапливаемая площадь помещения от 2300 до 3300 м2, отапливаемый объем от 6900 до 10000 м3.
Температура нагрева воды до 115 градусов.
Марка котла | Котел КВа КБ, Котел малой мощности | Давление рабочей среды, МПа (кгс/cм²) | 0.15-0.3 (1.5-3) |
---|---|---|---|
Тип котла | Водогрейный | Расход теплоносителя среды, м³/ч | 11 |
Вид топки | Ретортная, Автоматическая | Гидравлическое сопротивление при перепаде t, МПа (кгс/cм²) | 0.07 (0.7) |
Максимальная тепловая мощность, кВт | 300 | Аэродинамическое сопротивление, Па (мм. вод. ст.) | 35 |
Максимальная тепловая мощность, МВт | 0.3 | Разряжение в топочной камере, Па (мм. вод. ст.) | 20-40 (2-4) |
Максимальная тепловая мощность, Гкал | 0.26 | Расход уходящих газов, м³/ч | 1300 |
Диапазон регулирования, % | 30-100 | Температура уходящих газов, °C | 250 |
Диапазон регулирования мощности, кВт | 90-300 | Присоединенная электрическая мощность, кВт | 9.52 |
Топливо | Уголь, Твердотопливный | Тяга | Естественная |
Низшая теплота сгорания топлива, кКал/м³ | 5230 | Полный объем котла, м³ | 125 |
Влажность | 30 | Объем топочной камеры, м³ | 0.6 |
Фракция дробления, не более, мм | от 15 мм до 50 мм (семечко, мелкий орех), допускается применение кусков до 100 мм до 10%) | Объем штатного бункера, м³ | 0.80 |
КПД, не менее, % | 80 | Объем штатного бункера (насыпная плотность 1300 кг/м³), кг | 1040 |
Расход топлива среднечасовой за отопительный сезон, кг/ч | 35 | Размер топочной камеры, длина*ширина*высота, мм | 690х690х1265 |
Расход топлива при максимальной нагрузке котла (УГОЛЬ), кг/ч | 62 | Присоединительные размеры по водяному тракту, Ду | 50 |
Расход условного топлива, кг/ч | 46 | Присоединительные размеры газохода уходящих газов, ширина*высота / сечение, мм/м² | Ду 300/0.07 |
Отапливаемая площадь, м² | 2300-3300 | Габаритные размеры котельного блока, длина*ширина*высота, мм | 960x960x2165 |
Отапливаемый объем, м³ | 6900-10000 | Габаритные размеры установки, длина*ширина*высота, мм | 1380x2270x2620 |
Срок автономной работы до, суток | 2 | Масса, кг | 1200 |
Срок автономной работы в среднем за отопительный сезон, суток | 1.25 (30 часов) | Энергоэффективность | Высокая |
Срок автономной работы при максимальной нагрузке котла, ч | 17 | Бренд | HeatExpert |
Температура воды, °C | 55 - 115 |
Это устройство работает со вспомогательным оборудованием, которое приобретается отдельно. Если вы хотите сразу узнать стоимость всей установки, добавьте заинтересовавшие вас позиции в корзину. Чтобы точно расчитать стоимость доставки до вашего объекта, укажите его адрес в корзине и оправьте нам заявку. Обычно мы отвечаем в течение дня.
Автоматический угольный котел 300 кВт в Майкопе
Автоматический котел на угле 300 кВт нашего производства – это отсутствие постоянного контроля, техническая и экологическая безопасность, долговечность работы, простота в монтаже, эксплуатации и обслуживании, эффективность и экономичность.
Автоматический угольный котел 300 кВт предназначен для отопления и горячего водоснабжения загородных домов, коттеджей, ремонтных баз, офисных зданий, складских и производственных помещений, СТО, теплиц и животноводческих комплексов площадью до 1600 м2.
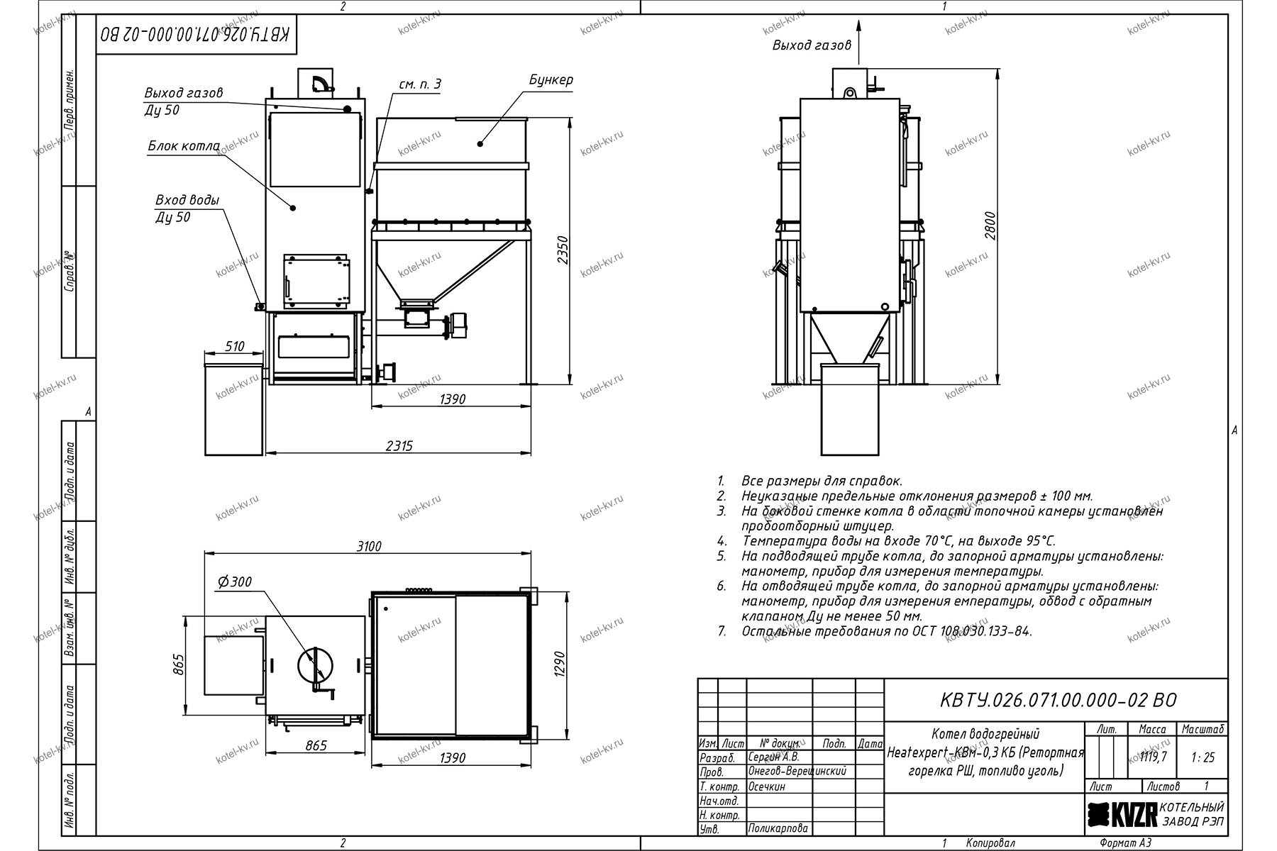
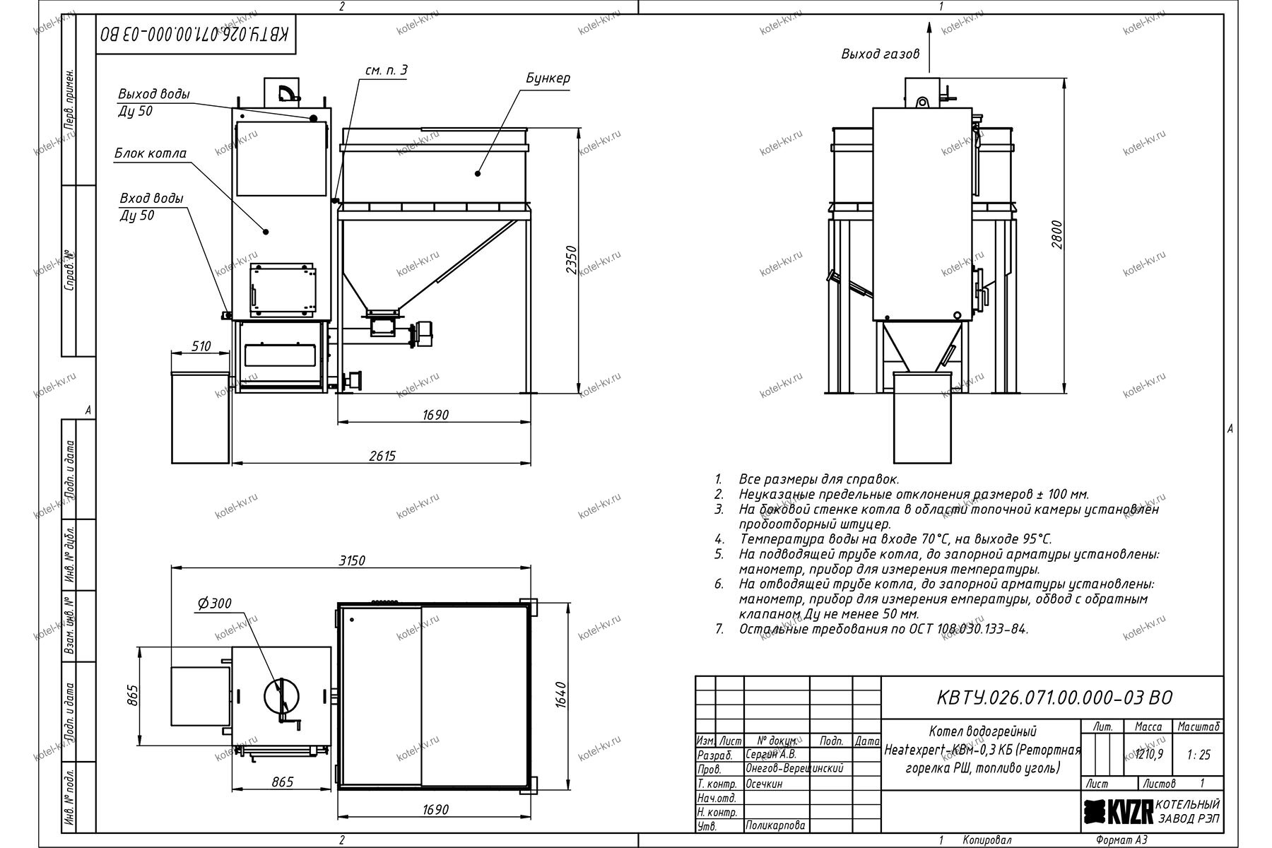
Конструкция автоматического котла на угле 300 кВт
Угольный котел 300 кВт с автоматической подачей конструктивно состоит из следующих блоков:
- котельный блок;
- шнековая система подачи топлива;
- бункер;
- ретортная горелка;
- золоудаление;
- контейнер шлака.
Современный котельный блок
Котельный блок автоматического угольного котла 300 кВт состоит из топки, конвективной части и обмуровки агрегата.
Конвективный теплообменник выполнен из параллельно установленных в шахматном порядке труб, расположенных над топкой. Такая компоновка труб исключает образование застойных зон со слабой циркуляцией теплоносителя, что способствует большей теплоотдаче и износостойкости.
Топка прямоугольной формы, экранирована водоохлаждаемыми панелями. Эффективное и безопасное водяное охлаждение топки препятствует закипанию котла даже при временной остановке в случаях со сбоем электроэнергии и прекращении циркуляции. В топке имеется дверка для обслуживания и розжига ретортной горелки и топки.
Благодаря конструкции теплообменной поверхности и наружней обшивке температура на поверхности автоматического котла на угле 300 кВт всегда находится в безопасных пределах и не превышает 40 градусов, что исключает травматизм.
Система топливоподачи для угля разного качества
Загрузка топлива осуществляется автоматически из расходного бункера в топку с помощью шнека. Наш автоматический котел может работать как на каменном, так и на буром угле от семечки до крупнокускового размером 10 см. В системе управления шнековой подачи предусмотрена защита от заклинивания шнека.
Безопасность топливопровода обеспечивается автономной системой пожаротушения, которая сработает вне зависимости от доступности электроэнергии.
Вместительный бункер
Вместительность бункера не менее 400 кг. Этого количества хватает до 7 дней непрерывной работы автоматического угольного котла 300 кВт при минимальной нагрузке. Дробилку для угля дополнительно приобретать не нужно. Для предотвращения зависания топлива в бункере предусмотрен штатный ворошитель. Это является неоспоримым преимуществом, поскольку необходимость в самостоятельной подготовке топлива отпадает.
Ретортная горелка
Ретортная горелка имеет Г-образную форму и снабжена чашей для сжигания топлива. Топливо на чашу поступает снизу реторты. Топливо двигается из бункера за счет шнека. Пламя горелки направляется вверх. Воздух, поступающий в область горения, поддерживает интенсивность пламени и охлаждает ретортную горелку, что предотвращает перегрев оборудования. Горелка снабжена отверстиями, через которые проникает вторичный воздух.
Горелку устанавливают в середине камеры сгорания, поэтому боковые стенки котла нагреваются равномерно и не перегреваются. Конструкция увеличивает путь к бункеру с топливом и снижает вероятность возгорания топлива в податчике.
Автоматическое золоудаление
Вам не понадобится останавливать и очищать котел от золы и шлака. Встроенный шнек автоматически удаляет образующуюся золу и шлак из котла в контейнер шлака, достаточно периодически его очищать.
Функциональная автоматика
Удобная и функциональная панель управления, позволяет с легкостью настраивать режимы работы автоматического котла, в зависимости от топлива, погодных условий и требований температурного режима в ваших помещениях.
Автоматика регулирует количество подаваемого топлива и воздуха в камеру сгорания.
При кратковременном перебое с электричеством автоматический котел на угле 300 кВт продолжает работать в том же режиме, что и до перебоя, исключая риск закипания или выхода из строя насосов.
Управление рециркуляционным насосом обеспечивает отсутствие конденсата на поверхностях нагрева при низкой нагрузке.
Работа автоматического котла на угле 300 кВт
Топливо по мере необходимости подается на реторту из бункера с помощью шнека. Подача воздуха, необходимого для горения, происходит одновременно с подачей топлива. Количество подаваемого топлива и воздуха регулируется автоматикой. Удаление золы в контейнер золошлакоудаления происходит по мере сгорания топлива.
Дополнительно вы можете приобрести GSM модуль, который позволяет контролировать состояние котла и отопительной системы, оповещает о нештатных ситуациях при работе котла. Повышает надежность работы котельной, так как сразу информирует Вас о любых сбоях в работе.
Купить автоматический угольный котел 300 квт в Майкопе
Промышленный водогрейный автоматический котел на угле 300 кВт ( - мощность 0,3 МВт; - топливо уголь; - температура 115 градусов; - отапливаемая площадь* от 2300 до 3300 м2; - отапливаемый объем* от 6900 до 10000 м3 (* диапазон для самого холодного и самого теплого региона РФ)); - применение для отопления производства, жилых зданий, цехов, складов, промышленных предприятий, теплиц, гаражей, больниц, школ, садов, для монтажа в блочно модульных котельных.
Предлагаем вам подобрать мощность водогрейного промышленного котла по отапливаемой площади и объему, с учетом типа строения и данных о температуре в регионе и в Майкопе, вида топлива.
Выбор водогрейного котла для котельной производится по каталогу отопительного оборудования нашего Котельного завода с помощью калькулятора подбора мощности. Водогрейные котлы отопления для промышленных предприятий предлагается выбрать из модельного ряда газовых, дизельных, мазутных, твердотопливных угольных и дровяных котлов, с ручными и автоматическими топками мощностью от 150 кВ до 4 МВт, и температурой нагрева теплоносителя до 115 градусов.
Подбор мощности водогрейного промышленного котла для отопления учитывает:
- температуру в самую холодную пятидневку в отопительный сезон. Для каждого региона РФ температура различна, данные берутся из СП 131.13330 «Строительная климатология»;
- тепло, необходимое для возмещения потерь тепла через ограждения, окна, двери здания и тепловые потери через не плотности строения и открываемые двери;
- температуру воздуха внутри помещений. Для различных типов и назначений строений она существенно отличается:
Тип отапливаемого строения | Температура внутри помещения |
---|---|
Жилые строения и административные здания | + 20 С° |
Больницы, детские сады | + 22 С° |
Учебные заведения, предприятия общепита, учреждения культуры, школы | + 16 С° |
Магазины и депо | + 15 С° |
Кинотеатры | + 14 С° |
Гаражи | + 10 С° |
Бани | + 25 С° |
- объем строения. Для определения наружного объема строения площадь по наружным стенкам строения на уровне первого этажа перемножается на высоту. Для панельных домов высота определяется: от уровня пола (нулевой отметки) до верхней плоскости теплоизоляционного слоя чердачного покрытия. Для остальных зданий высота определяется от уровня земли. Подбор мощности для отопления различных по назначению строений считается отдельно. Все полученные значения мощности складываются.
Подбор мощности водогрейного промышленного котла производится для общей суммарной мощности каждого отдельно стоящего задания.
Если вам требуется подобрать мощность котла в Майкопе для котельной с учетом вентиляции здания, горячего водоснабжения объекта, потерь в теплотрассе - необходимо производить более подробный расчет. Данный расчет мы можем произвести для вас бесплатно. Отправьте опросный лист и заявку на электронный адрес sale@kotel-kv.ru или позвоните по телефону 8 (800) 551-70-98.
комплект